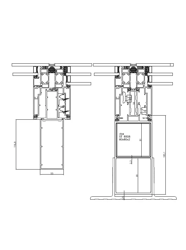
Urban Passive Капачкова 55
Ширина на видим профил (колона/ригел): 55 мм
Макс. дебелина стъклопакет: 44 мм
Тип система: колона–ригел (kolona 5501 / rigel 5511)
Тип фиксиране: притискащ профил + капачка
Ширина на капачка: 55 мм
Терморазделител: да
Отводняване: интегрирано, двустепенно
Възможност за отваряеми елементи: да

Urban Passive Капачкова 50
Urban Passive Структурна
Ширина на фугата: 20–30 мм (UV устойчив структурен силикон)
Дебелина на остъкляване: до 44 мм
Метод на фиксиране: структурно залепване към носеща подконструкция
Външно оформление: без външни притискащи профили и капачки
Топлоизолация: профили с прекъснат термомост
Терморазделител: да
Отводняване: скрита, двустепенна дренажна система
Отваряеми елементи: интегрирани, със скрито крило

Urban Passive Wood
Фасадни системи за модерни сгради
Фасадните системи на Schüco съчетават съвременен дизайн, надеждност и функционалност. Подходящи са както за жилищни, така и за обществени сгради.
Енергийна ефективност
Осигуряват добра топлоизолация и допринасят за по-ниски разходи за отопление и охлаждане.
Сигурност и устойчивост
Конструкциите са устойчиви на атмосферни влияния и могат да бъдат изпълнени според изискванията за сигурност.
Дизайн и гъвкавост
Позволяват големи остъклени площи и разнообразни архитектурни решения.

Светлина, стил и устойчивост за вашата сграда
Фасадите съчетават елегантен външен вид, стабилна конструкция и ефективна изолация. Решение, което придава модерен облик и осигурява дълготрайна надеждност.